
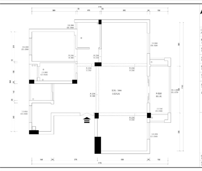
將所主臥室房門外移,將該衛生間納入主臥,這樣避開衛生間門對大門,設置一個對景裝飾,整體效果更為合理。
廚房偏小,將原有生活小陽臺納入廚房,大幅增加廚房空間,也增強了餐廳空間的獨立性。
北面房間設為一個榻榻米及書房雙用空間,滿足主人在家偶爾處理工作,及客人居住的需求。
公共衛生間按干濕分區處理,實際使用更合理,洗漱臺靠外設置,也能避免洗手間門太靠近客廳沙發。
.jpg)
恩施土家族苗族自治州祥福雅居四居現代簡約風格裝修效果圖
.jpg)
恩施土家族苗族自治州祥福雅居四居現代簡約風格裝修效果圖
.jpg)
恩施土家族苗族自治州祥福雅居四居現代簡約風格裝修效果圖
.jpg)
恩施土家族苗族自治州祥福雅居四居現代簡約風格裝修效果圖
.jpg)
恩施土家族苗族自治州祥福雅居四居現代簡約風格裝修效果圖
.jpg)
恩施土家族苗族自治州祥福雅居四居現代簡約風格裝修效果圖

恩施土家族苗族自治州祥福雅居四居現代簡約風格裝修效果圖
廣州101-200平米現代簡約風格三江雅苑裝修設計案例
現代簡約風格101-200平米三居室
江門101-200平米現代簡約風格海倫時光裝修設計案例
現代簡約風格101-200平米三居室
江門101-200平米現代簡約風格御濱名門家裝設計效果圖
現代簡約風格101-200平米三居室
廣州101-200平米現代簡約風格遠洋天祺室內裝修設計案例
現代簡約風格101-200平米四居室
廣州100平米以下現代簡約風格家裝設計效果圖
現代簡約風格100平米以下二居室
柳州101-200平米現代簡約風格富灣國際家裝設計案例
現代簡約風格101-200平米四居室
廣州101-200平米現代簡約風格遠洋新天地裝修設計案例
現代簡約風格101-200平米三居室
柳州101-200平米現代簡約風格君華新城裝修設計案例
現代簡約風格101-200平米三居室